Aktuelle Verkaufsprojekte
Immobilienverkauf

Wohnen im Herzen von Rellingen

Rellingen bietet sowohl die idyllische Lage im Grünen mit charmantem Ortskern als auch einen optimalen Anschluss an Hamburg.

So sind es lediglich ca. 2 km bis zur S-Bahnstation S3 Thesdorf, weniger als 400m bis zur nächsten Bushaltestelle und nur ca. 1km bis zur Autobahnauffahrt A23. Das Rellinger Zentrum ist fußläufig in wenigen Gehminuten zu erreichen und bietet neben den Geschäften des täglichen Bedarfs viele kleine Läden, einen Wochenmarkt sowie Gastronomie.

Ellerbeker Weg

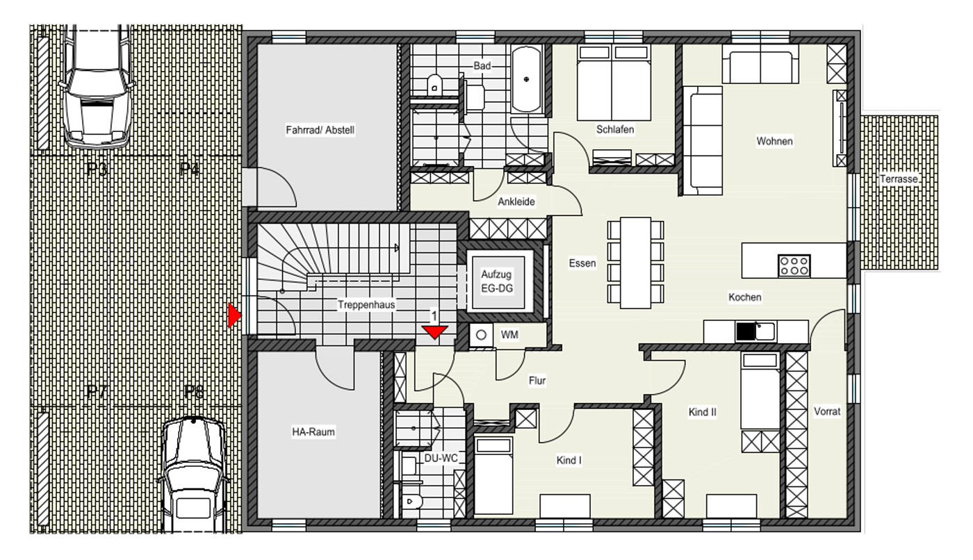
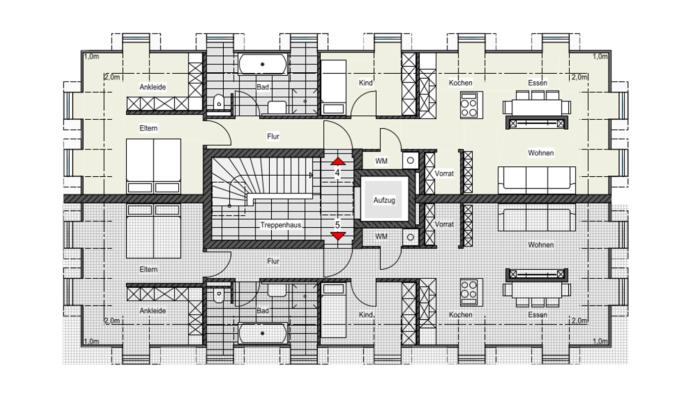
Eckdaten: Mehrfamilienhaus mit 5 Wohneinheiten

Mansarddach
Wohnungsgrößen von 81m² bis 126m²
3-4 Zimmerwohnungen
Garten/Balkon
Wahlweise barrierefreie Wohnungen
Gasunabhängige Wärmeversorgung durch Luftwärmepumpe
Lüftung mit Wärmerückgewinnung
Fußbodenheizung in allen Zimmern vom Erdgeschoss bis zum Staffelgeschoss
Bäder mit einer gehobenen Sanitärausstattung
Ebenerdige geflieste Dusche inkl. Linienentwässerung
Kunststofffenster mit 3-Scheiben Sonnenschutzverglasung
Hochwertiger Designbelag in den Wohnräumen
PKW-Stellplätze, sowie Fahrradabstellraum
Aufzugsanlage vom Erdgeschoss bis ins Dachgeschoss

Projekt im Detail

Lageplan

PDF

EG Wohnung 1

PDF

OG Wohnung 2

PDF

OG Wohnung 3

PDF

DG Wohnung 4

PDF

DG Wohnung 5

PDF